Класове товарни вагони

Товарни вагони клас „S”

Характеризират се с двустепенно изменение на натисковата сила във фрикционните възли. Изменението се извършва след достигането на т.нар. обръщателна брутна маса на вагона – mВ0.

То се осъществява ръчно или автоматично, като са възможни два основни конструктивни варианта: двустепенно изменени на предавателното отношение на ЛС, като PC (налягане в спирачния цилиндър)запазва нормалния си характер и  постоянно предавателно  отношение при изменение на максималната стойност на PC.

У нас, а и в много други европейски държави, все още най-масово се използват вагоните с ръчно двустепенно изменение на предавателното отношение на ЛС. Превключването се извършва с помощта на механичен товарообръщател. Превключващите му елементи са разположени от двете страни на всеки вагон, на средата на рамата му.

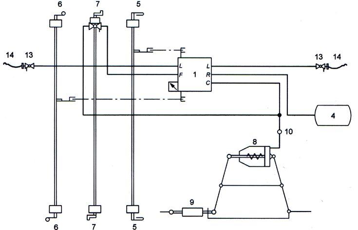
Пневматично оборудване на вагони клас “S” с  двустепенно изменение на максималното налягане в спирачния цилиндър:

1 – ФВ KE

2 dSL/D;

4 – R;

5 – ръкохватка за включване и изключване на ФВ;

6 – G-Pобръщател;

7 – обръщател “пълен/празен”;

8 – C;

9 – регулатор на ЛС;

10 – тестов фитинг;

13 – кран;

14 – маркуч.

Товарни вагони клас „SS”

Те се характеризират с безстепенно увеличаване на натисковите сили във фрикционните възли,пропорционално на повишаването на брутната маса. Изменението на тези сили се постига чрез т.нар. претеглящ или теглови вентил. Те създават командно налягане, пропорционално на натоварването, което от своя страна по пневматичен път променя налягането в спирачните цилиндри.

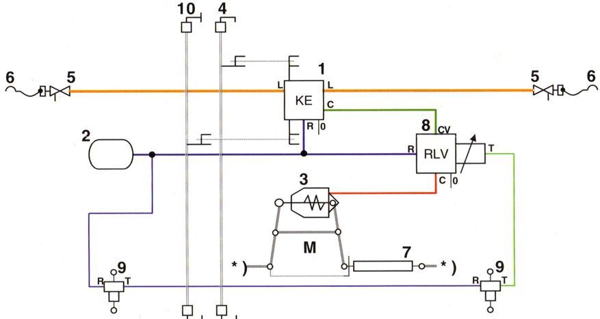
Пневматично оборудване на вагон клас “SS”:

Принципна схема на спирачната система на вагон с теглово регулиране:

8 – регулируем от натоварването вентил;

9 – теглови вентил;

10 – превключвател на режима на ФВ

 

 

 

Федя Серафиев

Федя Серафиев

Федя Серафиев е технически консултант с над 35 години опит в диагностиката и поддръжката на железопътни спирачни системи (Knorr-Bremse, Oerlikon, Wabtec). Основател на Spirachki.eu и автор на поредицата „Ремонт и изпитване на автоматични влакови спирачки“.

🚂

Намерихте материала за полезен?

Съдържанието на spirachki.eu е безплатно и ще остане такова. Ако статията ти е помогнала — можеш да подкрепиш сайта с малка доброволна сума. Всяко дарение помага за поддръжката и развитието на портала.

PayPal Revolut
Bitcoin (BTC) адрес
bc1q0paz2mk43pxkhppxagwgugx2nt4f6xqty3lam2
Ethereum (ETH) адрес
0xA791661381F2a8aCF54a744287A95810Bde2b7E0